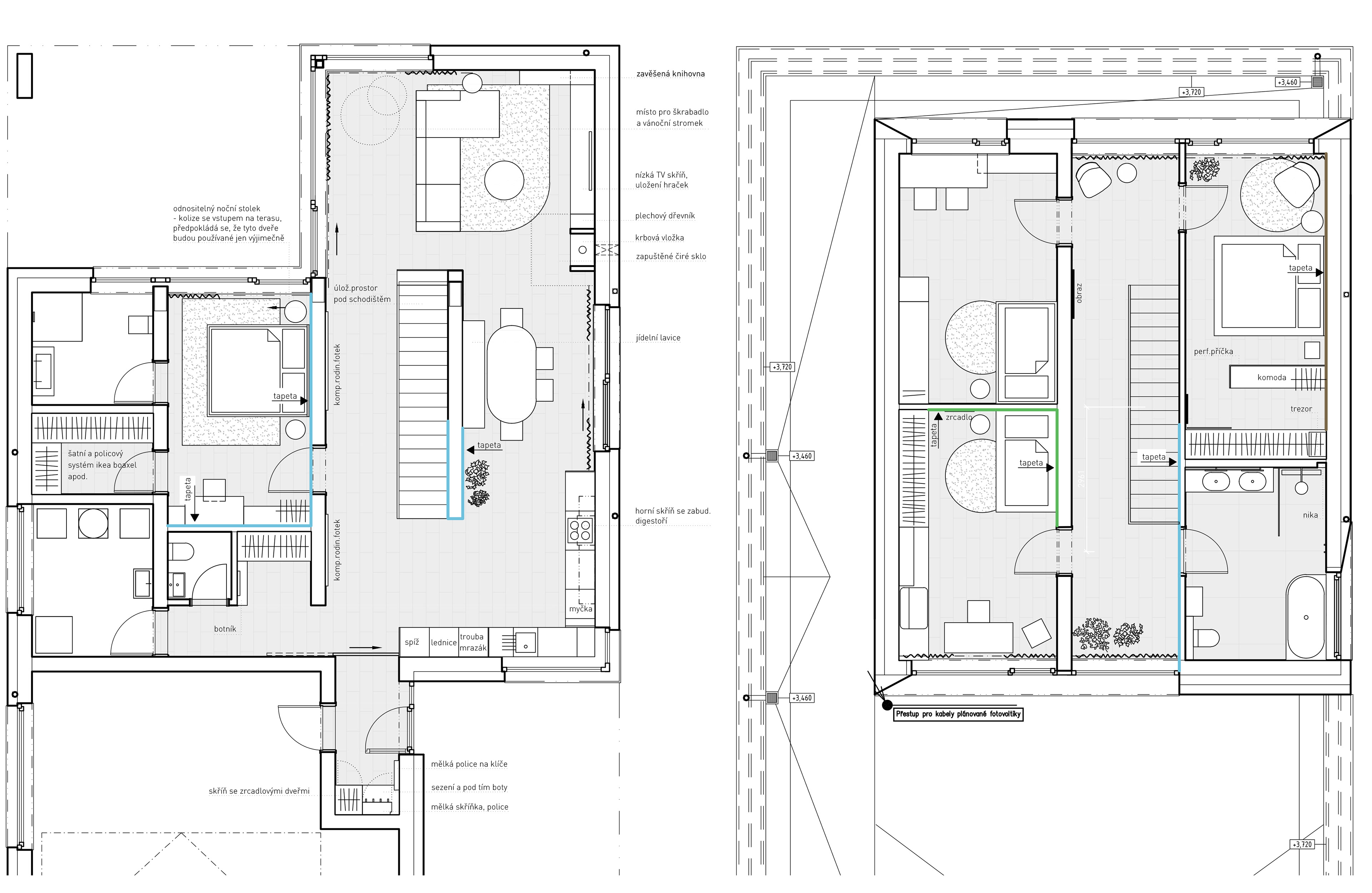
návrh interiéru dvoupodlažního rodinného domu u Prahy;
návrh byl pojat v návaznosti na minimalistickou architekturu domu, která dává důraz
na čisté kompaktní hmoty; elegantní paleta chladnějších tónů podtrhuje čistotu
prostoru a nadčasovost; výsledkem je harmonický a klidný interiér s důrazem
na funkci a jednoduchost
autor: Pavla Frauenterková | Hezkey s.r.o.
vizualizace: Tanya Minko, Jan Strachoň
2025
návrh byl pojat v návaznosti na minimalistickou architekturu domu, která dává důraz
na čisté kompaktní hmoty; elegantní paleta chladnějších tónů podtrhuje čistotu
prostoru a nadčasovost; výsledkem je harmonický a klidný interiér s důrazem
na funkci a jednoduchost
autor: Pavla Frauenterková | Hezkey s.r.o.
vizualizace: Tanya Minko, Jan Strachoň
2025